Vertical Line
View
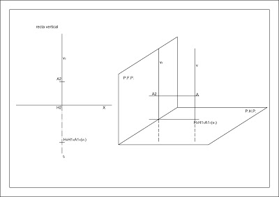
Vertical line:
The vertical line is parallel to the frontal projection plane and perpendicular to the horizontal projection plane. It has only a horizontal line.
This line is a horizontal projection, which means that all points that you have are projected horizontally on your line (see below “point marking on top and vertical lines”)

Last modified: Friday, 11 September 2020, 12:05 AM
